二手房

二手房 出租房 商铺 厂房 写字楼 仓库 土地 楼盘
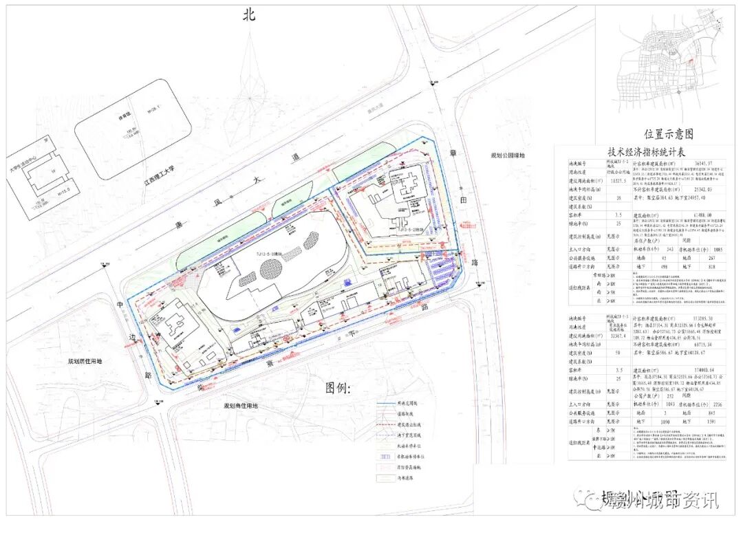
赣州经开区唐凤商业中心项目规划批前公示
时间:2021-08-30浏览:869

近日,赣州市自然资源局赣州经济技术开发区分局发布中恒唐凤商业中心项目规划批前公示。

图片

图片

赣州开发区中恒唐凤商业中心项目位于科技城片区,唐凤大道江西理工大学新校区对面,总投资8亿元(含土地购置费),其中工程费用54136.13 万元。项目用地面积约42694.9 ㎡,总建筑面积约235488.64㎡,包括新建住宅、商业、行政办公、酒店、物业管理用房、地下室以及配套的室外体育健身活动场地、公厕、道路及硬化、绿化工程、给排水、电器、消防等相关附属工程。

图片

图片

▲大概位置示意


Copyright 2021 南康房产网-南康房产资讯网-南康生活网房地产频道 客服热线:13576733268

南康房产网f0797.com收集南康本地最新最全的新房楼盘信息、二手房、商铺店面、仓库土地出售出租信息,本地房产中介可在本站发布房源信息,触达南康有购房租房需求用户。是赣州市南康区本地受欢迎的房地产信息网站

ICP证:赣ICP备18001792号-2 公安备案号:赣公网安备 36070302360803号 南康房产网sitemap.xml

手机版

微信公众号

客服微信

发布房源 中介入驻 网站客服 返回顶部